| Flat No: | 6 |
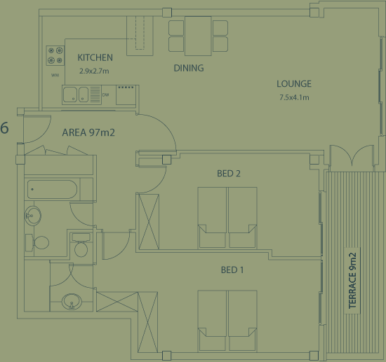
Entrance hallway (3.5 x 1.3) leading to large open plan living room (7.5 x 4.1) and fully fitted kitchen (2.9 x 2.7) and floor to ceiling patio doors to terrace overlooking Holmes Road. Wood flooring throughout, built in cupboard in the hallway and a separate bathroom (2.3 x 2). Master bedroom (6.7 x 3.1) with en-suite shower room (2 x 2.0) and ample storage/wardrobe space with doors leading onto terrace. A second double bedroom (5.4 x 3 ) and double patio doors leading onto the terrace.
|
| Total
Area: |
97
m2 |
|
| Purchase
Cost: |
- |
|
| Rental Cost: | - |
|
| Availability: | SOLD |
